GCW серия
Установки GCW - специальные электростанции, разрабатываются и производятся по специальным запросам Заказчиков. Данный проект был разаработан для компании STATOIL в Норвегии.
Информация о компании
Statoil - объединенная нефте-газодобывающая компания с обширной международной сферой деятельности. Она была создана в 1972, когда Норвежский Парламент решил основать государственную нефтедобывающую компанию - STATOIL. Её главная деятельность состоит в исследовании, добыче, переработке и продаже нефти и её производных, работая самостоятельно или в сотрудничестве с другими компаниями.
Информация о продукции
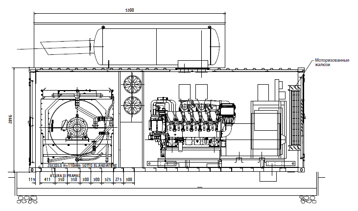
Разработаная по запросу Заказчика электростанция для работы при очень низких температурах.
Агрегат был установлен в 25' контейнер, оборудованный моторизованными жалюзи и электоровентиляторами, поддувающими остаточный горячий воздух от двигателя.
Двигатель оборудован системой подогрева охлаждающей жидкости и масла, электровентилятор радиатора находится во внешнем пространстве контейнера. Топливо предварительно нагревается и поступает из внешнего топливного бака по изолированным трубам, что позволяет эксплуатацию при температурах ниже - 20 °C.
Автоматическая панель управления оснащена моторизированным автоматическим выключателем SIEMENS.


